Parc De Prince
awards
2021
Finalist in Renovation Category, Memar Awards-Tehran, Iran
2021
Finalist in Renovation Category, Honar-e Memari Awards-Tehran, Iran
type
Office (Startup) – Renovation
client
Danayan Financial Holding
area
450 Sqm
location
Tehran- Iran
design date
2021
status
Completed
Story
With an area of about 450 square meters, Parc De Prince Office is located in the second basement of the Parc De Prince residential complex – a space with concrete walls that have been used as building storage. The client’s request was to turn this storage into a startup office with a lively and dynamic atmosphere.
Finding a solution for the lack of light, creating proper ventilation, and changing the cold and gray space into a proper office were the most important challenges for the consultant.









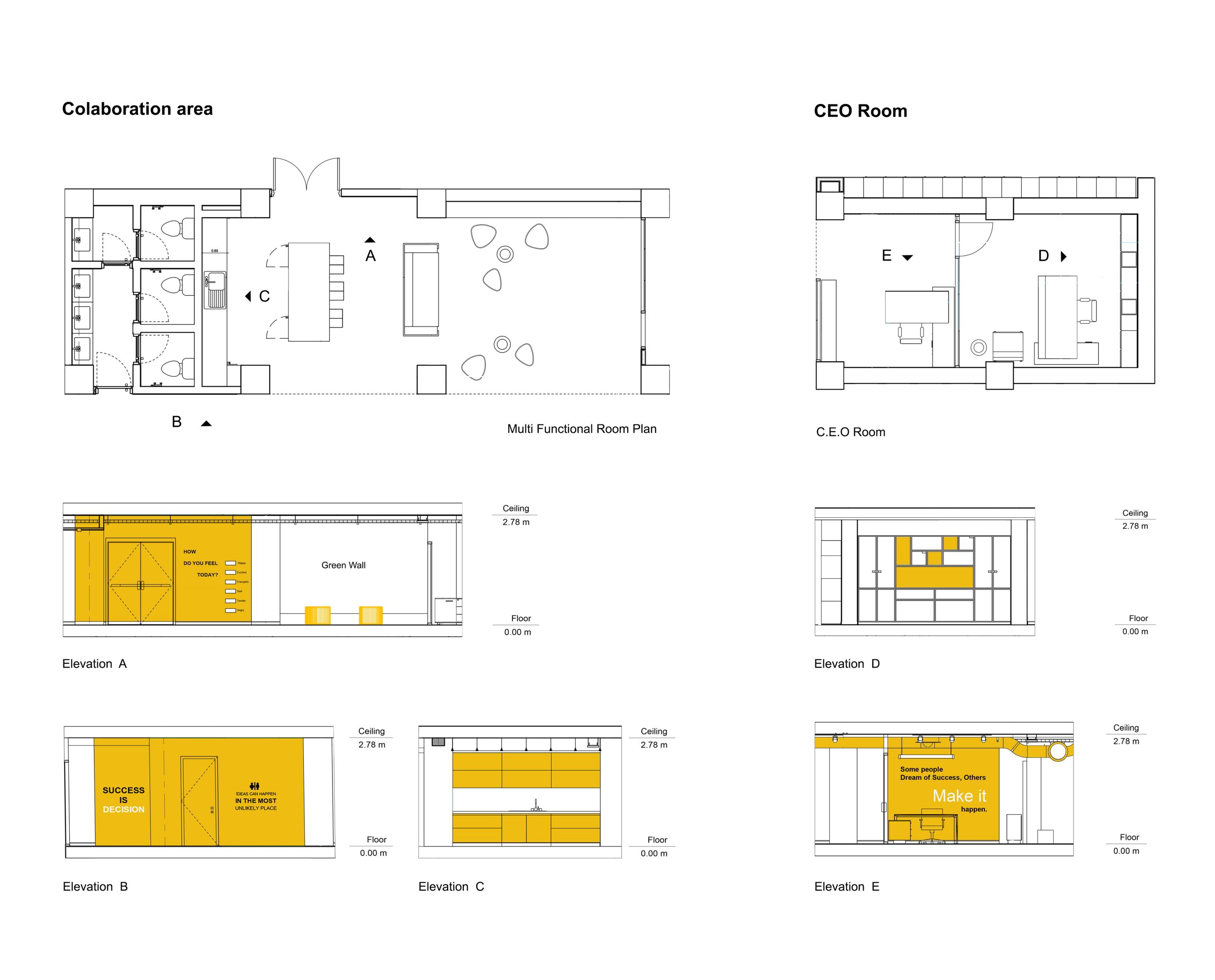
The use of yellow color and green spaces, the creation of open offices as well as provision of spaces for the employees to cooperate and interact in a comfortable environment equipped with modular furniture are some of the key features in the project design. The yellow color path starts from the ground floor, continues along the stairs, enters the office in the second basement, and moves inside it.


In the design process, it has been tried to create the best kind of spatial connection by keeping the structural concrete walls. In this arrangement, the entrance path is created as a linear space with various sequences that eventually lead to the heart of the office, which is an open, green, and interactive space. Around this area, there are open offices, and management sections; multi-purpose rooms are located at the end of the paths. Modular furniture has been designed for each space, making it easy to change and rearrange.

